-
Gartenhaus aus imprägniertem Holz
-
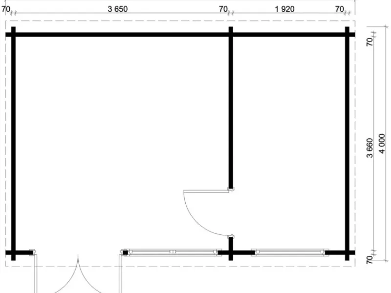
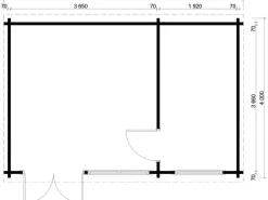
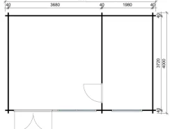
Sockelmaß Haus ohne Außenfläche B x T: 578 x 371 cm
-
Robuste & langlebige Konstruktion
-
Wandstärke von 44 mm sorgt für die notwendige Stabilität
Klassisches Design
Das Gartenhaus aus Holz überzeugt durch sein klassisches Design. Es eignet sich für den universellen Einsatz als Geräteschuppen, Gartenpavillon oder Freizeithaus.
Holz-Gartenhaus mit Pultdach
Das Gartenhaus ist aus imprägniertem Holz in Blockbohlenbauweise gefertigt. Durch die Imprägnierung wird kein weiterer Anstrich benötigt um das Haus vor Verwitterung zu schützen. Das Gerätehaus verfügt über eine stabile Konstruktion, mit einer Wandstärke von 44 mm. Das Dach des Gerätehauses ist als Pultdach konstruiert. Die Dacheindeckung ist separat erhältlich.


















Reviews
There are no reviews yet.